Zobacz aranżację Zobacz aranżację
Plan of the flat.

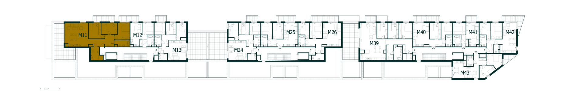
Zobacz umiejscowienie apartamentu na piętrze

Location the flat on the floor.

Wizualizacje apartamentu

Lokalizacja inwestycji

Jesteś zainteresowany apartamentem?

Powierzchnia 102.21 m2

Powrót

Cena

Oferta specjalna! Oszczędzasz: 0 zł

Cena za m2 0 zł/m2

Cena całkowita - Do zakupu apartamentu, zakup miejsca parkingowego w hali garażowej w cenie 68 500 zł jest obligatoryjny. Opcjonalnie do apartamentu można dokupić komórkę lokatorską.
Lista dostępnych komórek.


Mieszkanie M11

|

Piętro II

|

Pokoje 4

|

Klatka

1. Salon + aneks 34.82 m2
2. Pokój 13.19 m2
3. Pokój 11.72 m2
4. Pokój 13.89 m2
5. Łazienka 5.78 m2
6. Komunikacja 14.46 m2
7. Toaleta 8.35 m2
8. Balkon 8.12 m2
9. Taras 31.80 m2

1 Powierzchnia użytkowa lokalu liczona zgodnie z zasadami zawartymi w polskiej normie PN-ISO 9836:2022-07
2 Powierzchnie pomieszczeń oraz wymiary podano z uwzględnieniem tynków.
3 Rysunki opracowano na podstawie projektu budowlanego.
4 Powierzchnie i wymiary mogą ulec niewielkim zmianom wynikającym z realizacji projektu.
5 Wyjście na taras – możliwa różnica poziomów.
6 Powyższa oferta ma charakter informacyjny i nie stanowi oferty handlowej w rozumieniu art.66 §1 Kodeksu cywilnego oraz innych właściwych przepisów prawnych.

Biuro
sprzedaży

FORMULARZ KONTAKTOWY FORMULARZ KONTAKTOWY

ZADZWOŃ DO NAS

+48 600 777 731

ODWIEDŹ BIURO SPRZEDAŻY

ul. Niska 2, Kraków